Kenmerken
- 1560 m2 grondstuk
- Zwembad: Yes
Omschrijving
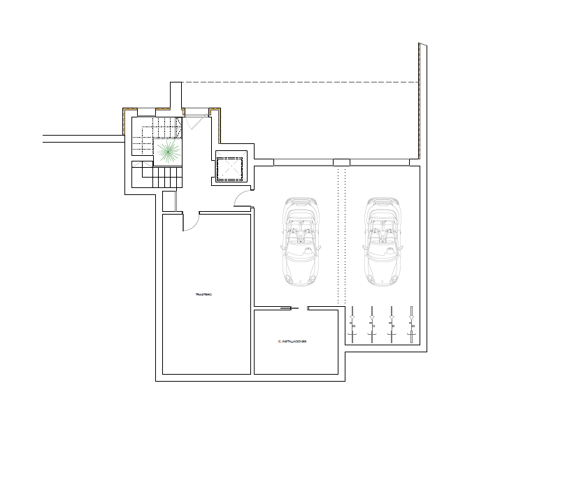
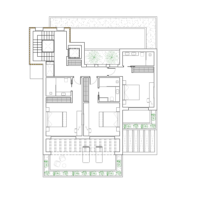
PERFECTE LOCATIE – GROOTE GROOTTE – STILLE ZONE – AANSLUITING VOOR ELEKTRICITEIT EN WATER – PERCEEL IS AL GEBRUIKT VOOR BOUW – VOORGESTELD VOORONTWERP Geweldige kans in Jávea!Zoek je de ideale plek om het huis van je dromen te bouwen? Dit prachtige perceel van 1.908 m² biedt alles wat je nodig hebt: ruimte, locatie en comfort. Gelegen in een van de meest gewilde gebieden van Jávea, op loopafstand van het charmante oude gedeelte, geniet je van de rust van een gevestigde woonwijk zonder concessies te doen aan de nabijheid van alle voorzieningen.Klaar om te bouwen: het perceel is reeds ontwikkeld en heeft aansluitingen voor elektriciteit en water, je hoeft alleen de voorzieningen aan te vragen. Vergeet voorafgaande bouwwerkzaamheden en begin vanaf dag één met het ontwerpen van jouw huis, bovendien heeft de architect een idee voorbereid van wat er gebouwd kan worden om het maximale uit de vierkante meters van het perceel te halen en de beste uitzichten en zonne-orientatie te verkrijgen.Vanwege de grote grootte kun je een woning bouwen tot 381 m², op één of twee verdiepingen, met de mogelijkheid om een ondergrondse garage of kelder toe te voegen die niet meetelt voor de bouwcapaciteit, waardoor je nog meer leefruimte wint die aan al je behoeften kan worden aangepast.Er zijn niet veel percelen van deze grootte en kenmerken in dit gebied, wat deze investering een onherhaalbare kans maakt.Wacht niet langer: kom het bekijken en ontdek zelf al zijn potentieel.- Bel ons vandaag nog en organiseer je bezoek vrijblijvend -






