0031 683707000

Grondstuk te koop in Mijas €1.450.000

Kenmerken

  • 0 m2 woonoppervlak
  • 6009 m2 grondstuk
  • Zwembad: Yes

Omschrijving

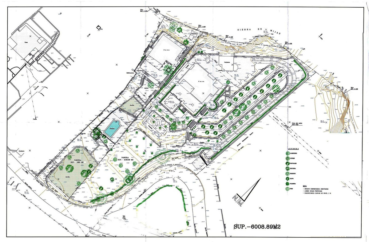
Urban Development Land – Mijas Pueblo – Costa del Sol. Magnificent urban plot for sale in a highly sought-after area. The plot is surrounded by mature trees, ensuring privacy. One minute by car from the centre of Mijas Pueblo. A Detailed Development Study ("Estudio de Detalle) has already been approved to build 11 townhouses and 1 villa. ________________________________________ Technical Data: • The plot is located in sector U.E. S-19 of Mijas • It complies with all boundary limits established in the alignment plans • Total surface area: 6,008.89 m² according to IBI records (4,188.89 m² + 1,820.00 m²) ________________________________________ According to the Mijas PGOU, the following construction limits apply: • Building coefficient: 0.35 m²/m² • Number of permitted properties: 1 residence per 500 m² • Maximum number of floors: 2 TOTAL BUILDABLE AREA ACCORDING TO PGOU: 2,103.11 m² (maximum 12 dwellings) ________________________________________ The approved Detailed Development Study proposes: • Buildable area: 1,918.74 m² • Number of dwellings: 12 • Maximum height: 2 floors • Plot coverage: 21.14% • Parking spaces: 18 ________________________________________ The PGOU classifies the plots as AIS-3. According to Article 229, section 4b of the PGOU, developments of semi-detached single-family housing (ADS) are permitted, processed through a Detailed Development Study. The minimum plot size required for such developments in the AIS-3 Subzone is 4,000 m². In this case, the plot has 6,008.89 m².

Stel uw vraag