Kenmerken
- 879 m2 woonoppervlak
- 380 m2 grondstuk
- Zwembad: No
Omschrijving
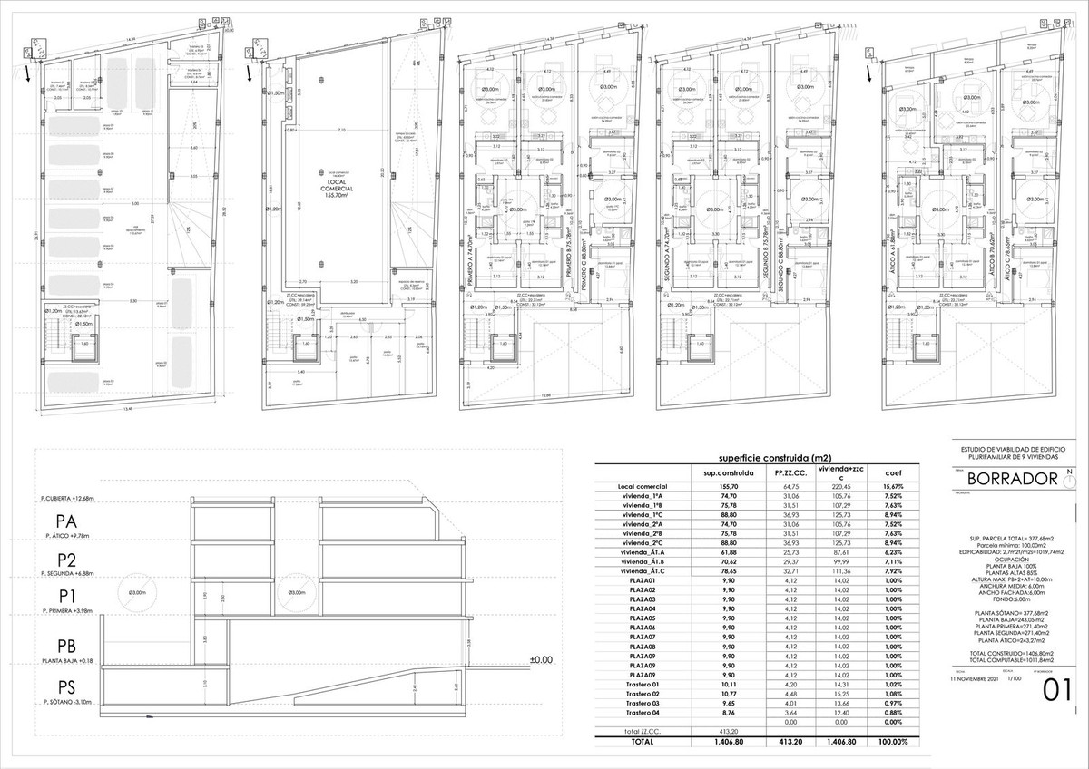
- Investeringsmogelijkheid!!! * Te renoveren gebouw in Avda Reyes Católicos, Alhaurín de la Torre, Málaga * Haalbaarheidsstudie voltooid * Residentieel gebruik * Mogelijkheid om een meergezinswoning te bouwen met 9 woningen met ondergrondse parkeergarage, opslagruimten en commercieel Gebouw * * 3 verdiepingen boven de grond (naast kelder en begane grond) ** Ideale locatie: 10 minuten met de auto van het centrum van Malaga *
Gezien de mogelijkheden van het gebouw, waarin in totaal negen meergezinswoningen, een ondergrondse parkeergarage (met negen plaatsen en vier bergingen) en een commerciële ruimte van 156 m2 kunnen worden gerealiseerd, is dit een mooie investeringsmogelijkheid. Er is een uitgebreide renovatie nodig, waarbij het mogelijk zou zijn om twee extra verdiepingen te bouwen: zolder en kelder.
Het gebruik is residentieel en er is al een bouwproject met een haalbaarheidsstudie, dus het zou binnen een periode van zes maanden na aankoop op de markt kunnen worden gebracht.
De locatie is ideaal, aangezien het zich in een van de meest centrale straten van Alhaurín de la Torre bevindt, een rustige en veilige gemeente op slechts tien minuten rijden van het centrum van Malaga en het strand.
Neem voor meer informatie contact met ons op.



















