0031 683707000

Grondstuk te koop in Mijas €1.597.000

Kenmerken

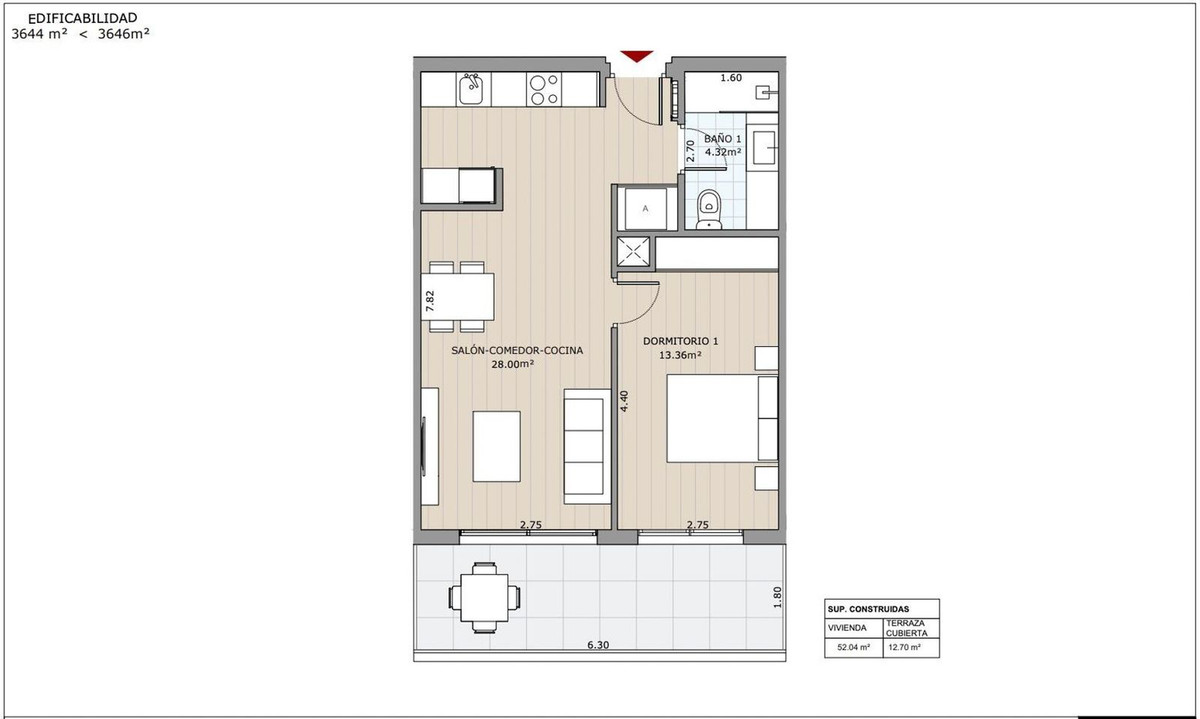
  • 3650 m2 woonoppervlak
  • 3984 m2 grondstuk
  • Zwembad: No

Omschrijving

Great Opportunity for Investors! Plot in La Cala Golf, strategically located next to the prestigious golf course. This is a plot designated for Equipment/Commercial use, with a total surface area of m² and 3,650 m² of buildable space, with a viable project for the construction of up to 51 tourist apartments. There is also the possibility of selling these apartments individually to third-party investors through shares, with comprehensive management provided by a tour operator. In addition, its prime location makes it a versatile space, also ideal for other projects such as a supermarket, gas station, or other highly demanded services in the area. Guaranteed feasibility. A safe investment in one of the most promising areas of the Costa del Sol.

Stel uw vraag