3 slaapkamer Rijtjeshuis te koop in Rincon de la Victoria
3 slaapkamer Rijtjeshuis te koop in Rincon de la Victoria
€559.000
Kenmerken
3 slaapkamers
2 badkamers
147 m2 woonoppervlak
0 m2 grondstuk
Zwembad: No
Omschrijving
GREAT OPPORTUNITY! MAGNIFICENT HOUSE JUST FIVE MINUTES FROM THE BEACH
We are pleased to present this magnificent fully renovated terraced house, located in a privileged setting, just 5 minutes' walk from the beach and 5 minutes from the town centre. Bus stops are only 3 minutes away, with lines R6, R4 and R2 connecting directly to Málaga city centre, including the famous Calle Larios, Muelle Uno, Centre Pompidou, Alcazaba and Picasso Museum.
Málaga Airport is approximately 25 minutes away.
An ideal location to balance everyday life and professional activities.
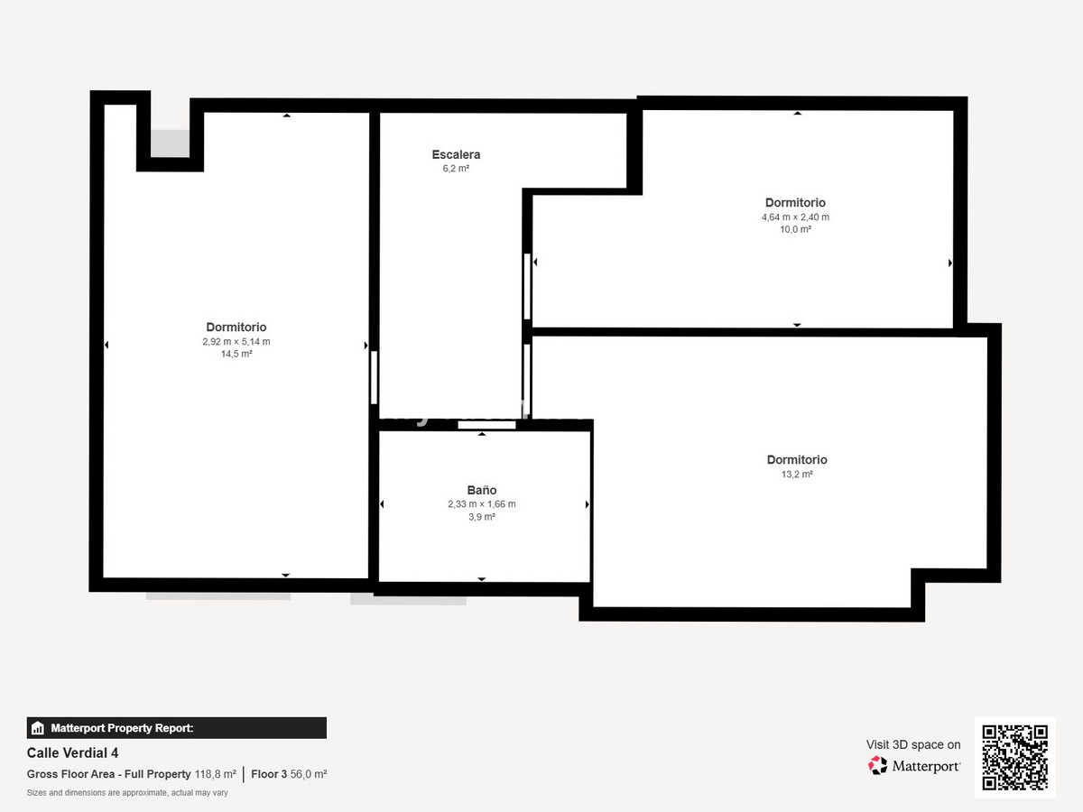
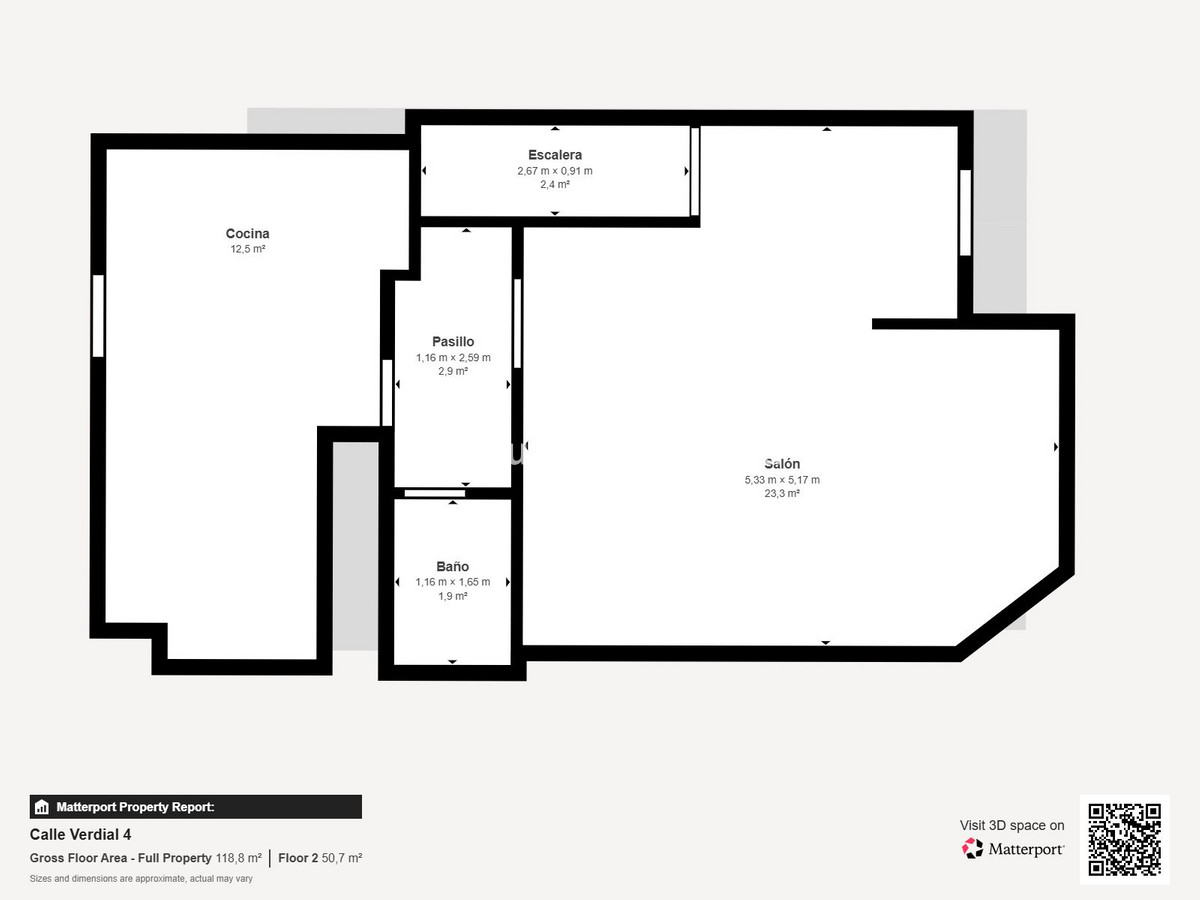
With 171 m² built, the property is mainly distributed over two levels, offering spacious and well-used interiors:
Ground floor: Access via a charming front patio, perfect for breakfast or outdoor moments. Inside, a bright living room with space for several areas, a guest bathroom and a fully equipped independent kitchen. From the kitchen, there is access to a covered terrace with partial sea views, ideal for dining or relaxing all year round.
First floor: Three bedrooms (two with built-in wardrobes) and a full bathroom with shower. The master bedroom stands out for its generous size and storage capacity.
Basement / Garage (-1 level): Large enclosed garage with space for two cars and a motorbike, plus storage area. There is the possibility of creating an additional mezzanine level to add a multipurpose room, office or leisure area.
The property features air conditioning in the living room and two bedrooms. It is sold furnished, with the option to be delivered unfurnished if preferred.
LOCATION
Rincón de la Victoria is one of the best-kept secrets of the Costa del Sol: a safe, authentic residential area with year-round life. Here, the beach becomes part of your daily routine, with long seaside walks, local Mediterranean restaurants and cafés by the sea. All in a calm, relaxed environment, perfectly connected to Málaga city centre and the international airport.
An ideal place for those seeking sun, wellbeing and a true quality of life by the sea.