Kenmerken
- 2 slaapkamers
- 1 badkamers
- 75 m2 woonoppervlak
- Zwembad: No
Omschrijving
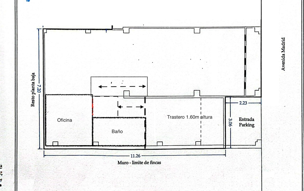
Ruim pand met kantoor en opslagruimte.
Ruim commercieel pand te koop in Moraira, gelegen in een strategische zone aan de Avenida Madrid – ideaal voor ondernemers, investeerders of bedrijven die zichtbaarheid en goede bereikbaarheid zoeken.
Het pand beschikt over een functionele indeling met:
Grote open ruimte met diverse gebruiksmogelijkheden en een uitstekende benutting van de beschikbare oppervlakte.Afgescheiden kantoor, perfect voor administratie, management of een privé ontvangstzone.Volledige badkamer, praktisch en goed toegankelijk in het pand gelegen.Berging van 1,60 m hoog, ideaal als extra opslagruimte.Brede gevel en rechthoekige indeling die licht en functionaliteit maximaliseren.
Met een totale lengte van ongeveer 13 m biedt dit pand veel potentieel voor commerciële activiteiten, een professioneel kantoor, opslagruimte of showroom.
Uitstekende ligging: Gelegen aan een van de hoofdstraten van Moraira, in een gebied met passage, voorzieningen en goede verbindingen.
Als je op zoek bent naar een commercieel pand in Moraira met veel mogelijkheden, een goede indeling en uitstekende toegankelijkheid, dan is deze eigendom een unieke kans.
Neem contact met ons op voor meer informatie of een bezichtiging.
















